Расположение

Срок сдачи: 4 кв. 2016 г.

Воронеж, улица Фёдора Тютчева, 105

Подробнее о ЖК

Срок сдачи: 4 кв. 2016 г.

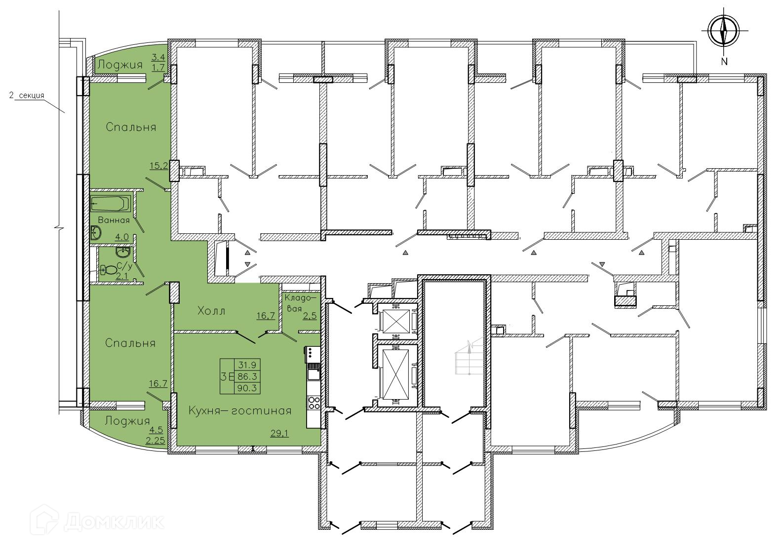
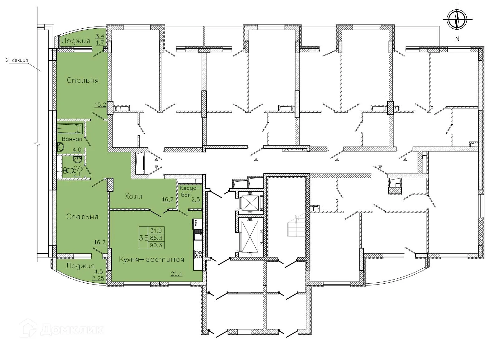
21.1 - 98.6 м²

Площади квартир

Квартиры

Тип жилья

19

Этажность

без ремонта

Отделка

Эконом

Класс жилья

10

Количество корпусов

кирпично-монолитный

Тип стен