Волгоград, Парковка
Площадь
Жилая
Кухня
Отделка
Класс жилья
Комнат
Номер кв.
Этаж
Предлагается 1-комнатная квартира в востребованном жилом комплексе "ЖК URBN (Урбн)" 🏢
Квартира расположена на 13-м этаже 24-этажного дома.
Прекрасный выбор для инвестиций.
Функциональная планировка: 📐
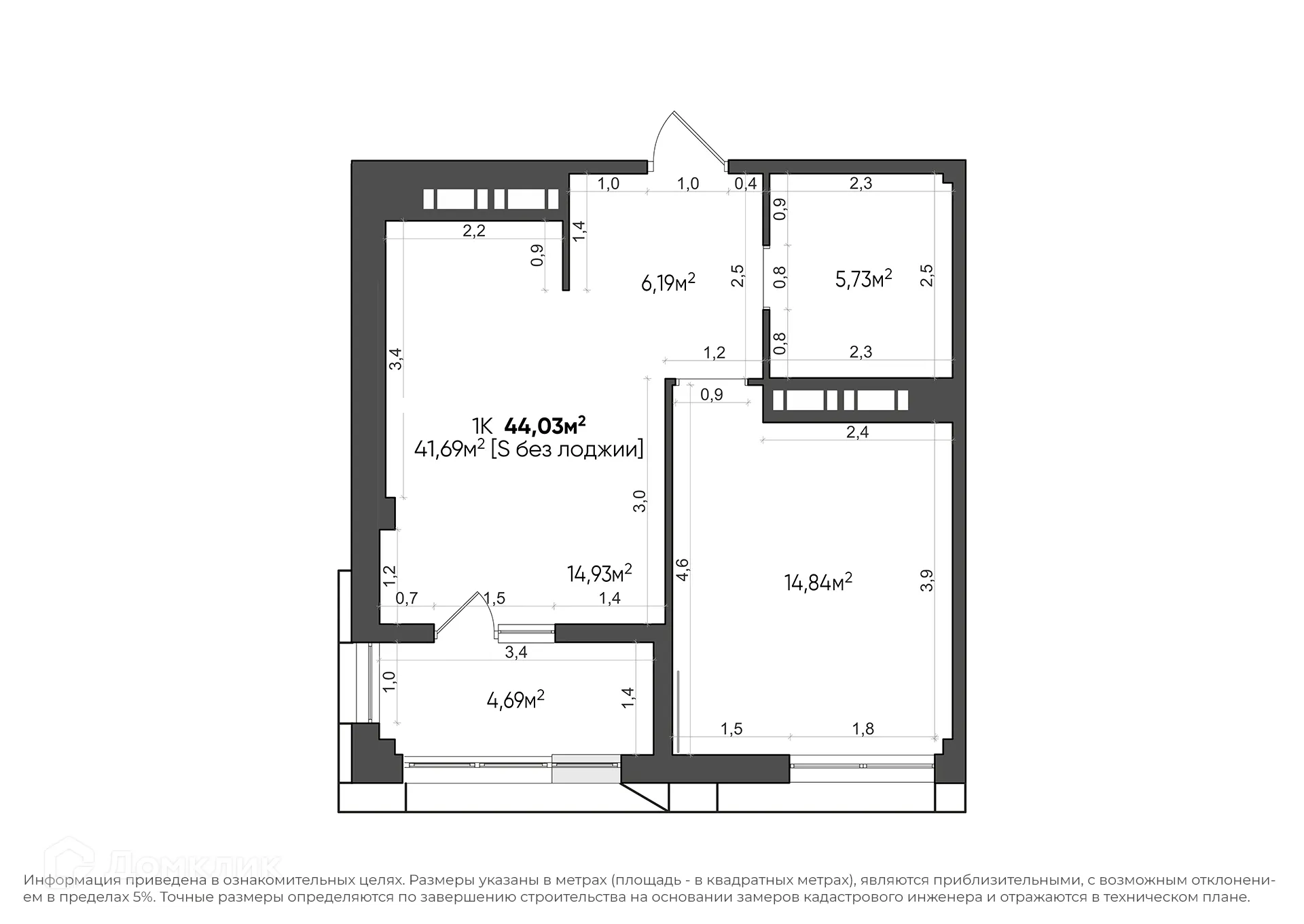
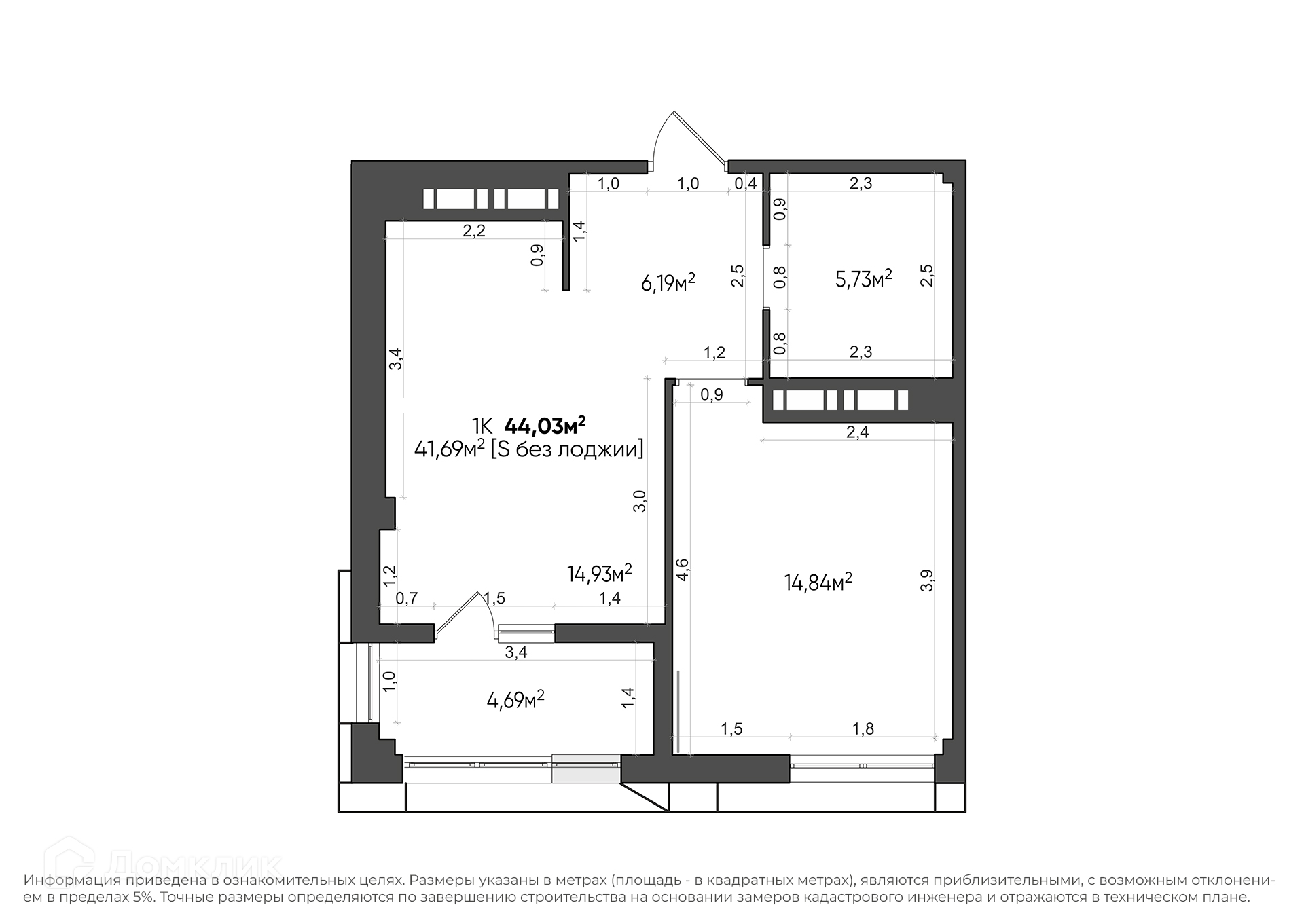
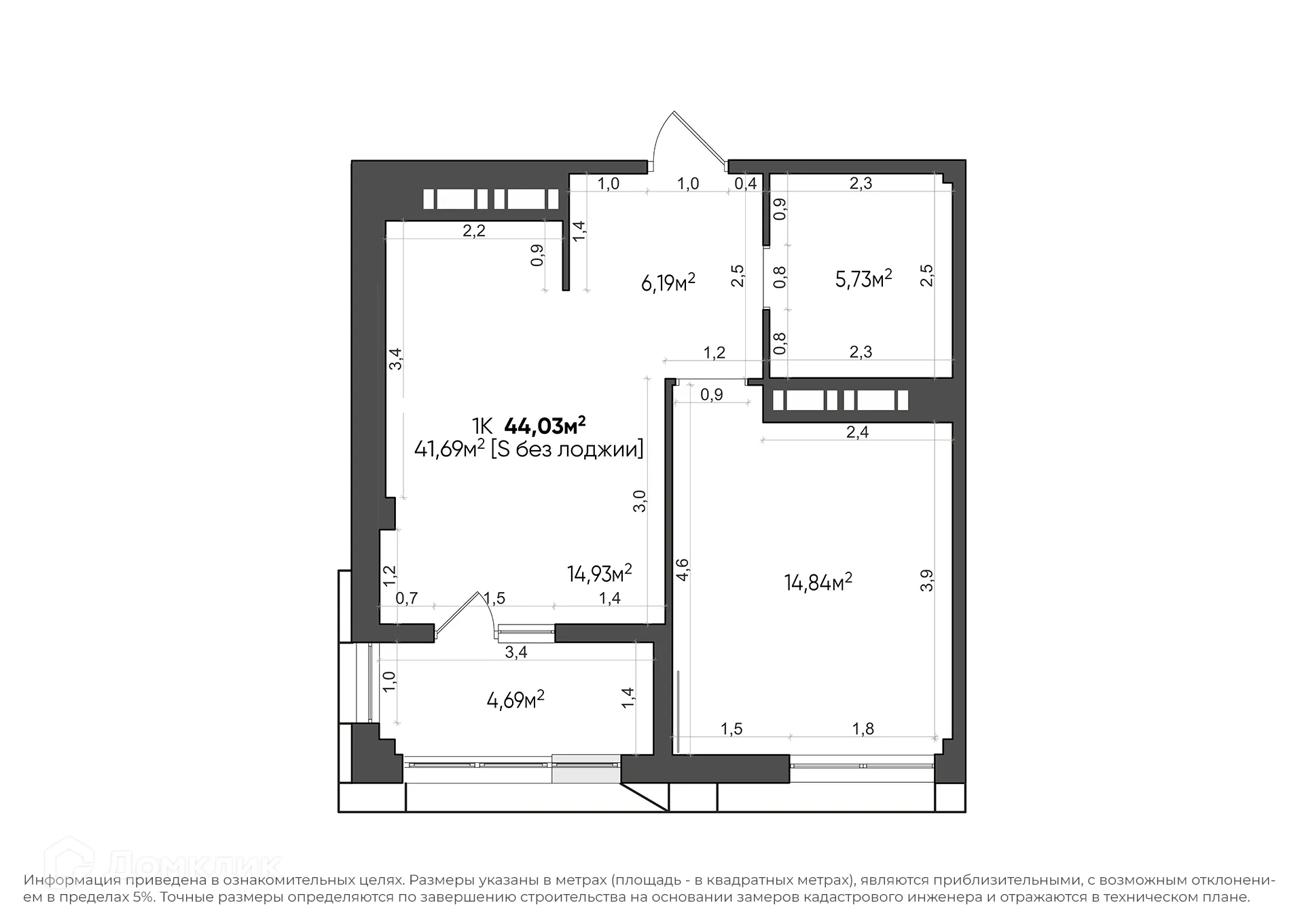
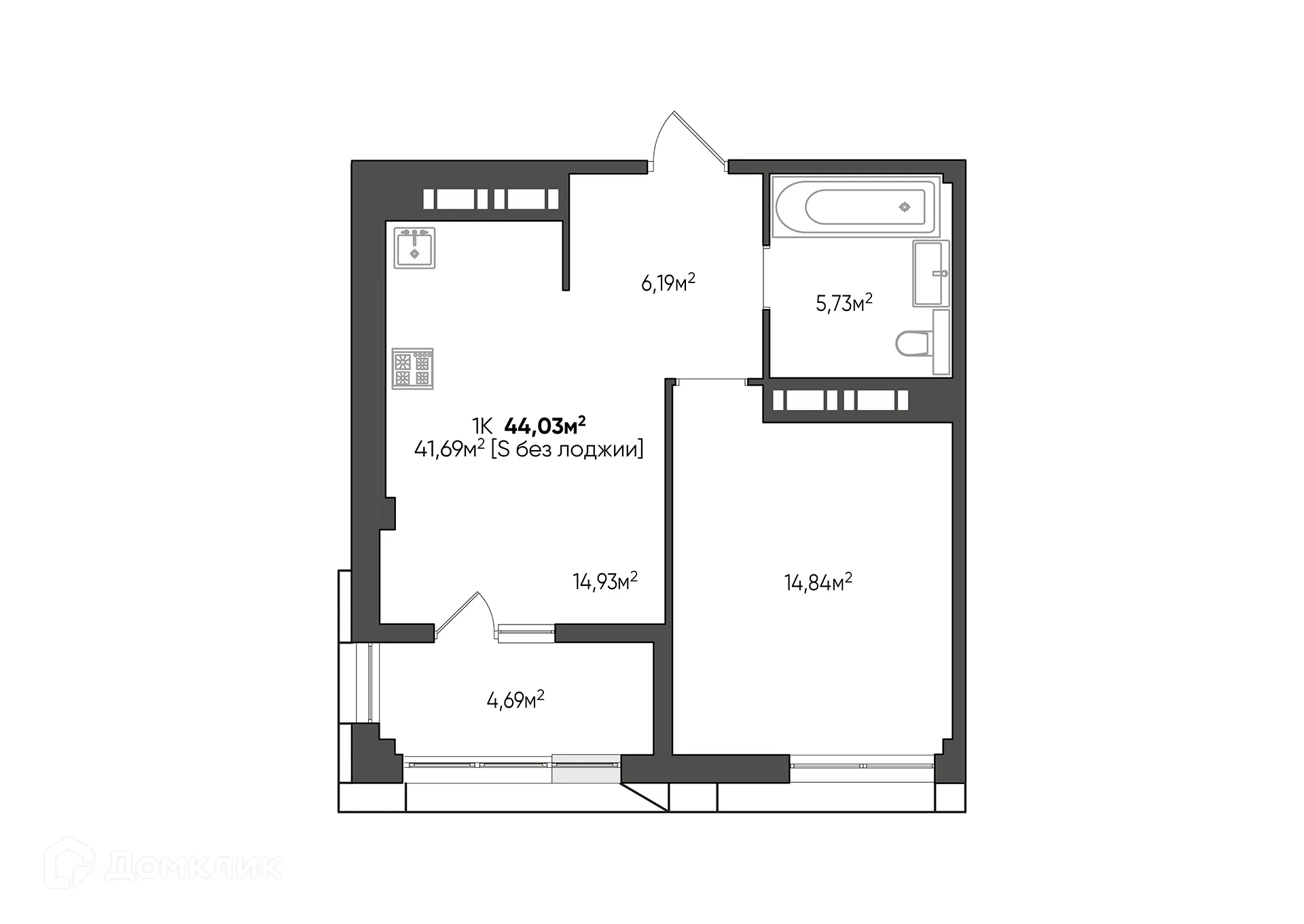
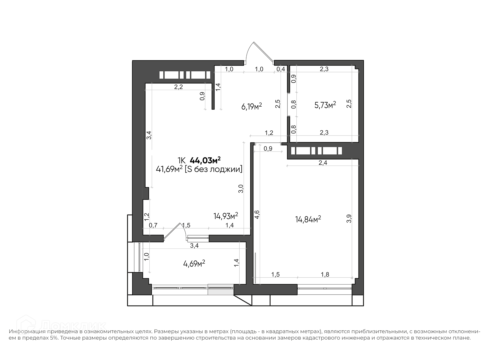
✅ Общая площадь: 44.03 м².
✅ Светлая жилая площадь: - м².
✅ Кухня: 14.93 м² — идеальна для семейных ужинов.
Преимущества квартиры: ✨
🔧 Вариант отделки: предварительная отделка. Это позволит вам сразу приступить к ремонту.
🌞 Увеличенные оконные проемы наполняют помещения естественным светом.
🌿 Класс жилья: Комфорт — высокое качество строительства.
Выгодные условия покупки: 💰
💳 Ипотека от 67 689 руб/мес.
🏦 Подходит под семейную и IT ипотеку.
🤝 Покупка напрямую от застройщика гарантирует спокойствие.
Чтобы узнать подробности и проверить актуальную стоимость — свяжитесь с нами прямо сейчас! 📞
Параметры новостройки в ЖК URBN (Урбн):
• Номер квартиры - 62
• Вариант отделки - предварительная отделка
• Площадь - 44.03 м²
• Жилая Жилая - - м²
• Площадь кухни - 14.93 м²
• Класс жилья - Комфорт
• Комнат - 1-комнатная квартира
• Этаж - 13
• Дом - 24-этажный
Полезная информация о ЖК URBN (Урбн)
Проект URBN разрабатывался с учетом современной концепции квартальной застройки, нацеленной на создание комфортной среды для различных сценариев жизни, и объединяющей 3 уровня пространств: общественное, полуприватное и приватное. Общественное пространство URBN складывается из архитектурного облика застройки, благоустройства прилегающих улиц и выходящих на них коммерческих помещений для обслуживания жителей квартала и микрорайона.
Полуприватное пространство URBN – это территория двора и подъездов, закрытая от всех сторонних посетителей и отвечающая необходимым требованиям безопасности. Помимо ограничения доступа для посторонних и автомобильного транспорта, во дворе предусматривается размещение различных функциональных зон, ориентированных не только на многообразие игровых форм, но и на многообразие видов досуга – от спортивных и детских площадок, до открытого кинотеатра и площади для собраний жителей. Так же в проекте реализовано благоустройство эксплуатируемой кровли наземного паркинга. Оно займет около 5 000 кв.м. и позволит дополнить утилитарную функцию паркинга общественной.
К оригинальному пространству так же относятся места общего пользования в доме, которые включают удобные светлые входные группы, колясочные и места для хранения велосипедов, а также помещения на 1 этажах для коммьюнити жильцов.
Несущий конструктив выполнен из сетки колонн, что обеспечивает гибкость планировочных решений для удовлетворения любых запросов, в том числе на квартиры с большими площадными характеристиками. Планировки квартир URBN разработаны в соответствии с европейскими стандартами разделения квартиры на личную и семейно-гостевую зоны. Компактные спальни вмещают все необходимое, ведь большую часть времени человек проводит там во сне. А увеличенная площадь остекления делает их более уютными и светлыми. Просторные общие комнаты совмещают и кухню и гостиную, и располагают больше времени проводить вместе. В квартирах проекта отсутствуют бесполезные пространства: площадь коридоров сокращена до минимума, для хранения предусмотрены ниши в прихожих, а теплое остекление летних помещений расширяет функциональное пространство квартиры, помимо мест хранения там с легкостью можно обустроить рабочее пространство или место для отдыха, которые можно использовать круглый год.
Срок сдачи: 2 кв. 2022 г.
Срок сдачи: 2 кв. 2022 г.
Площади квартир
Тип жилья
Этажность
Класс жилья
Корпусов
Стены