Волгоград, Канатный м-н, Голубева, 1
Площадь
Жилая
Кухня
Отделка
Класс жилья
Комнат
Номер кв.
Этаж
Предлагается 1-комнатная квартира в новом жилом комплексе "ЖК Сталь" 🏢
Квартира расположена на 5-м этаже 19-этажного дома.
Прекрасный выбор для семьи.
Функциональная планировка: 📐
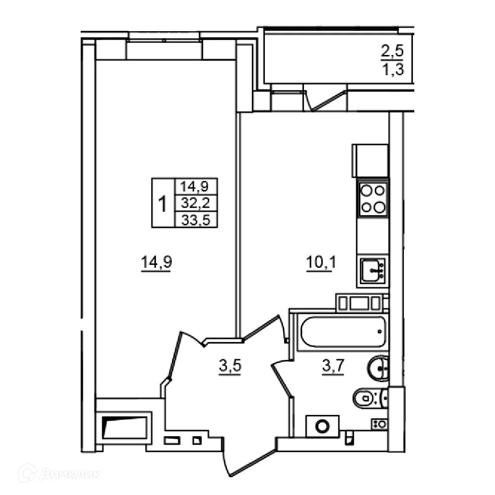
✅ Общая площадь: 33.5 м².
✅ Просторная жилая площадь: 14.9 м².
✅ Кухня: 10.1 м² — место для кулинарных шедевров.
Преимущества квартиры: ✨
🔧 Вариант отделки: без ремонта. Это позволит вам сразу приступить к ремонту.
🌞 Большие окна наполняют помещения природным светом.
🌿 Класс жилья: Комфорт — современные технологии.
Финансы и ипотека: 💰
💳 Ипотека от 27 018 руб/мес.
🏦 Подходит под семейную и IT ипотеку.
🤝 Покупка напрямую от застройщика гарантирует надежность.
Чтобы забронировать эту квартиру бесплатно и зафиксировать цену — позвоните нам прямо сейчас! 📞
Параметры новостройки в ЖК Сталь:
• Номер квартиры - 153
• Вариант отделки - без ремонта
• Площадь - 33.5 м²
• Жилая Жилая - 14.9 м²
• Площадь кухни - 10.1 м²
• Класс жилья - Комфорт
• Комнат - 1-комнатная квартира
• Этаж - 5
• Дом - 19-этажный
Полезная информация о ЖК Сталь
"Сталь" - это современный жилой комплекс комфорт-класса на берегу реки Волги в Красноармейском районе города Волгограда. Удобные колясочные, велосипедные и кладовые делают повседневную жизнь более комфортной. Закрытый доступ во двор обеспечивает безопасность и уют, создавая спокойную атмосферу для семейных прогулок. Квартиры с современными планировками открывают прекрасный вид на набережную и реку Волгу, а развитая благоустроенная территория включает прогулочные зоны, детские площадки и места для отдыха.
Неподалеку расположены необходимые инфраструктурные объекты: магазины, образовательные учреждения и зоны отдыха, что делает комплекс идеальным выбором для жизни.
Этот жилой комплекс — воплощение уютной городской жизни в гармонии с природой, где каждый сможет найти уголок для душевного покоя и активного отдыха.
Срок сдачи: 1 кв. 2027 г.
Срок сдачи: 1 кв. 2027 г.
Площади квартир
Этажность
Класс жилья
Корпусов
Стены