Волгоград, улица Майкопская, 5д
Площадь
Жилая
Кухня
Отделка
Класс жилья
Комнат
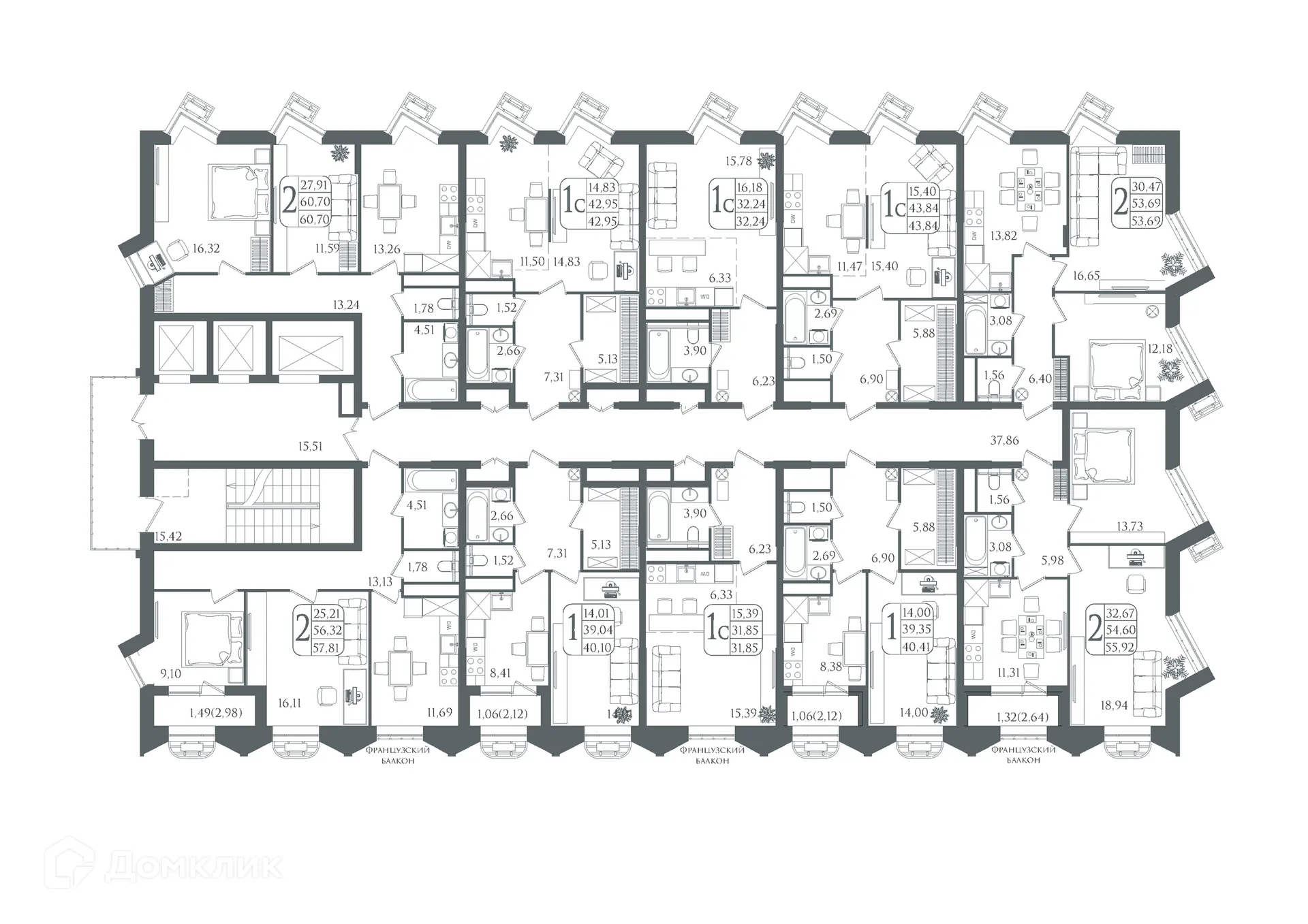
Номер кв.
Этаж
В продаже 1-комнатная квартира в востребованном жилом комплексе "ЖК DOLCE VITA" 🏢
Квартира расположена на 4-м этаже 22-этажного дома.
Прекрасный выбор для семьи.
Продуманная планировка: 📐
✅ Общая площадь: 42.95 м².
✅ Просторная жилая площадь: 14.83 м².
✅ Кухня: 11.5 м² — идеальна для семейных ужинов.
Особенности квартиры: ✨
🔧 Вариант отделки: без ремонта. Минимум грязных работ.
🌞 Увеличенные оконные проемы наполняют помещения естественным светом.
🌿 Класс жилья: Комфорт — благоустроенная территория.
Финансы и ипотека: 💰
💳 Ипотека от 50 413 руб/мес.
🏦 Подходит под семейную и IT ипотеку.
🤝 Эскроу-счета гарантирует спокойствие.
Чтобы узнать подробности и зафиксировать цену — свяжитесь с нами прямо сейчас! 📞
Параметры новостройки в ЖК DOLCE VITA:
• Номер квартиры - 12
• Вариант отделки - без ремонта
• Площадь - 42.95 м²
• Жилая Жилая - 14.83 м²
• Площадь кухни - 11.5 м²
• Класс жилья - Комфорт
• Комнат - 1-комнатная квартира
• Этаж - 4
• Дом - 22-этажный
Полезная информация о ЖК DOLCE VITA
Удобное местоположение — комплекс расположен в одном из самых живописных мест в Волгограде — в Ворошиловском районе, недалеко от береговой линии Волги. Живописные пейзажи Волги и возможность прогуляться недалеко от реки
҉ Развитая транспортная инфраструктура — в шаговой доступности располагаются остановки общественного транспорта, стоянки водного транспорта. До центральной городской набережной на авто ехать около 5 минут. Большая благоустроенная территория — максимальное озеленение и ландшафтный дизайн, современные игровые и спортивные площадки, тихие зоны для коворкинга и настоящий фонтан с куполом. В шаговой доступности парки мкр. Тулака. На берегу Волги расположен яхт-клуб, предоставляющий возможность отправиться на прогулку по Волге!
҉Современная архитектура — 8 корпусов жилого комплекса гармонично объединенные в одно целое стилобатной частью с коммерческими помещениями и парковкой.
҉Планировки на любой вкус — квартиры с огромным разнообразием планировочных решений. Панорамное остекление, витражи, открытые террасы – всё это позволит комфортно любоваться речными пейзажами и видами города.
Срок сдачи: 4 кв. 2025 г.
Срок сдачи: 4 кв. 2025 г.
Площади квартир
Этажность
Класс жилья
Корпусов
Стены