Волгоград, Строящийся жилой комплекс Резиденция
Площадь
Жилая
Кухня
Отделка
Класс жилья
Номер кв.
Этаж
В продаже Студия в новом жилом комплексе "ЖК "Резиденция"" 🏢
Квартира расположена на 7-м этаже 8-этажного дома.
Отличный вариант для комфортной жизни.
Удобная планировка: 📐
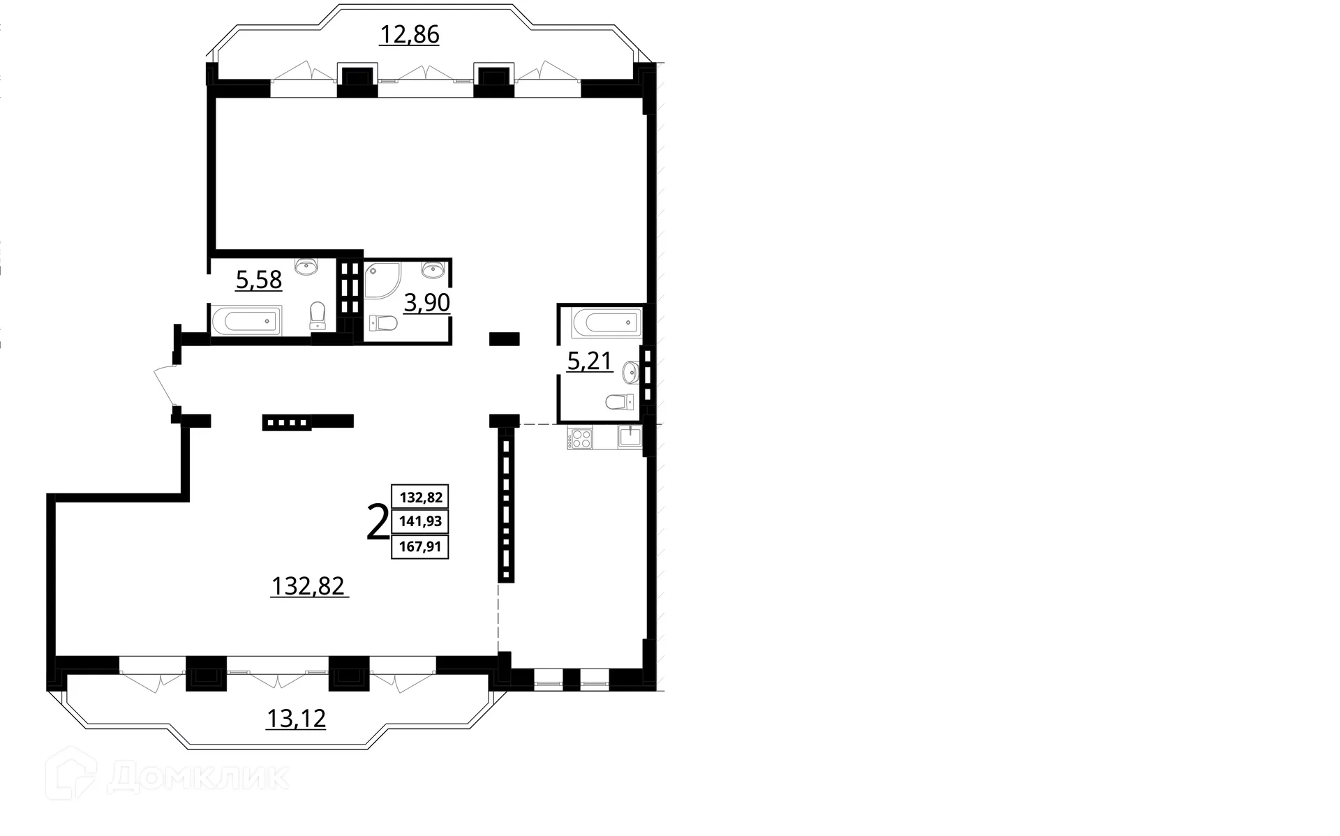
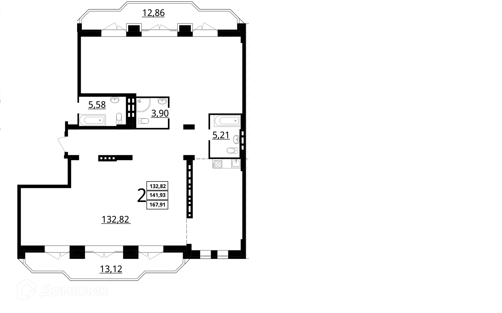
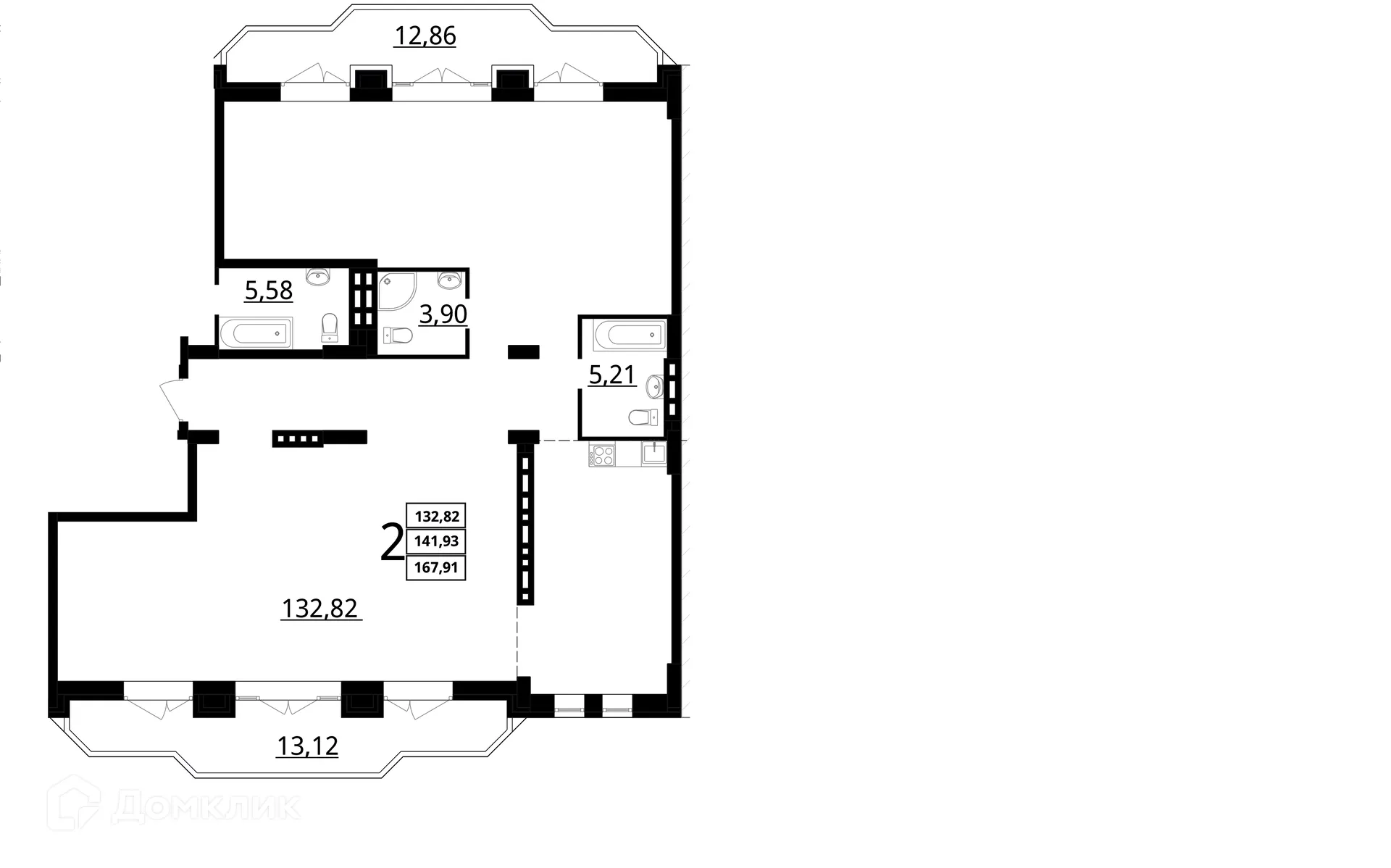
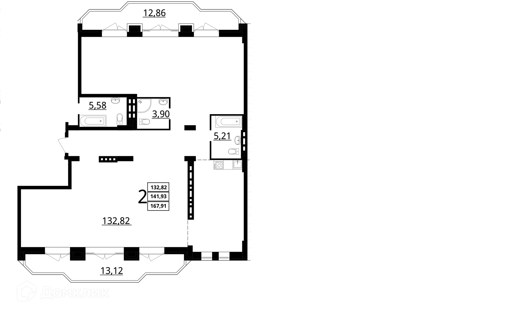
✅ Общая площадь: 167.91 м².
✅ Светлая жилая площадь: - м².
✅ Кухня: - м² — эргономичное пространство.
Преимущества квартиры: ✨
🔧 Вариант отделки: без ремонта. Готовая база для вашего интерьера.
🌞 Большие окна наполняют помещения естественным светом.
🌿 Класс жилья: Премиум — высокое качество строительства.
Выгодные условия покупки: 💰
💳 Ипотека от 157 258 руб/мес.
🏦 Подходит под семейную и IT ипотеку.
🤝 Эскроу-счета гарантирует спокойствие.
Чтобы забронировать эту квартиру бесплатно и проверить актуальную стоимость — свяжитесь с нами прямо сейчас! 📞
Параметры новостройки в ЖК "Резиденция":
• Номер квартиры - 129
• Вариант отделки - без ремонта
• Площадь - 167.91 м²
• Жилая Жилая - - м²
• Площадь кухни - - м²
• Класс жилья - Премиум
• Комнат - Студия
• Этаж - 7
• Дом - 8-этажный
Полезная информация о ЖК "Резиденция"
Резиденция.
Это не просто пространство для жизни. Это новая концепция личной безопасности, сочетание индивидуального подхода к проектированию и безупречного качества его исполнения.
Архитектурный стиль Резиденции продиктован европейскими городами, кварталами средневековья. Резиденция состоит из семи секций, переменной этажности 6-8 этажей., сплетенных воедино, для создания обособленной, полностью закрытой внутренней территории.
Яркая внешность дома является оправой функциональности и красоты внутриквартирного пространства. Повышенное внимание при проектировании было уделено именно уникальности планировочных решений.
Минимальное количество несущих стен позволит максимально творчески подойти к дизайну своей квартиры. Поэтому Вы сможете легко создать свое уникальное жилое пространство нужной Вам площади.
Резиденция - это первый жилой комплекс в Волгограде премиум-класса, обладающий максимальным объединением преимуществ:
полностью закрытая территория (системы видеонаблюдения, пункт охраны)
подземный паркинг (продажа мест)
система умный дом
система кондиционирования чиллер-фанкойл
автономная котельная
устройство теплых полов в зоне ванных комнат и санузлов, а также в зонах прихожей и кухни.
и это еще не все!
Первая очередь сдана. Продажа второй очереди.
Резиденция — тот редкий случай, когда прилагательное «уникальный» не станет преувеличением.
Срок сдачи: 2 кв. 2024 г.
Срок сдачи: 2 кв. 2024 г.
Площади квартир
Этажность
Класс жилья
Корпусов
Стены