Волгоград, Строящийся жилой комплекс Резиденция
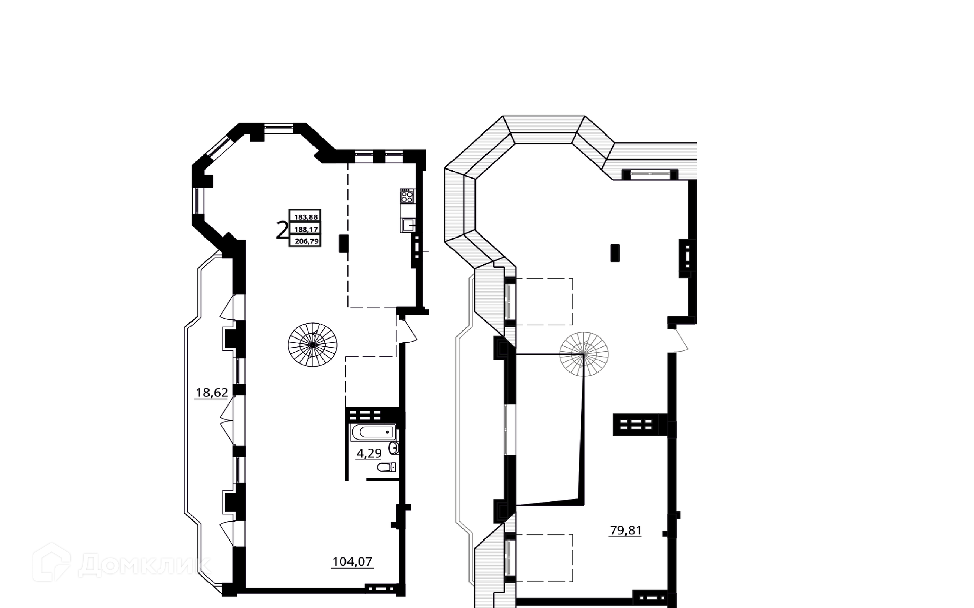
Площадь
Жилая
Кухня
Отделка
Класс жилья
Номер кв.
Этаж
Доступна к покупке Студия в современном жилом комплексе "ЖК "Резиденция"" 🏢. Квартира расположена на 7-м этаже 8-этажного дома. Прекрасный выбор для инвестиций.
Для бесплатного бронирования и зафиксировать цену — позвоните нам прямо сейчас! 📞
Резиденция. Это не просто пространство для жизни. Это новая концепция личной безопасности, сочетание индивидуального подхода к проектированию и безупречного качества его исполнения. Архитектурный стиль Резиденции продиктован европейскими городами, кварталами средневековья. Резиденция состоит из семи секций, переменной этажности 6-8 этажей., сплетенных воедино, для создания обособленной, полностью закрытой внутренней территории. Яркая внешность дома является оправой функциональности и красоты внутриквартирного пространства. Повышенное внимание при проектировании было уделено именно уникальности планировочных решений. Минимальное количество несущих стен позволит максимально творчески подойти к дизайну своей квартиры. Поэтому Вы сможете легко создать свое уникальное жилое пространство нужной Вам площади. Резиденция - это первый жилой комплекс в Волгограде премиум-класса, обладающий максимальным объединением преимуществ: полностью закрытая территория (системы видеонаблюдения, пункт охраны) подземный паркинг (продажа мест) система умный дом система кондиционирования чиллер-фанкойл автономная котельная устройство теплых полов в зоне ванных комнат и санузлов, а также в зонах прихожей и кухни. и это еще не все! Первая очередь сдана. Продажа второй очереди. Резиденция — тот редкий случай, когда прилагательное «уникальный» не станет преувеличением.
Срок сдачи: 2 кв. 2024 г.
Срок сдачи: 2 кв. 2024 г.
Площади квартир
Этажность
Класс жилья
Корпусов
Стены