Волгоград, Семь Ветров м-н, 126-й микрорайон
Площадь
Жилая
Кухня
Отделка
Класс жилья
Комнат
Номер кв.
Этаж
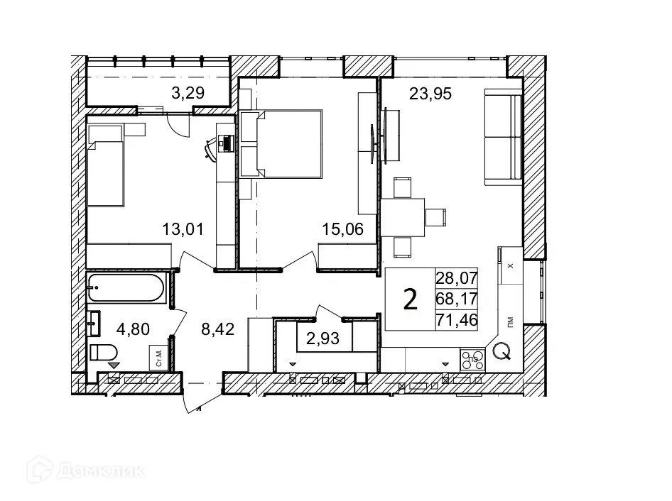
Предлагается 2-комнатная квартира в востребованном жилом комплексе "ЖК ОНЕГИН" 🏢
Квартира расположена на 9-м этаже 10-этажного дома.
Прекрасный выбор для семьи.
Функциональная планировка: 📐
✅ Общая площадь: 71.46 м².
✅ Уютная жилая площадь: 28.07 м².
✅ Кухня: 23.95 м² — эргономичное пространство.
Особенности квартиры: ✨
🔧 Вариант отделки: без ремонта. Это позволит вам сразу приступить к ремонту.
🌞 Большие окна наполняют помещения естественным светом.
🌿 Класс жилья: Комфорт — благоустроенная территория.
Финансы и ипотека: 💰
💳 Ипотека от 77 259 руб/мес.
🏦 Подходит под семейную и IT ипотеку.
🤝 Эскроу-счета гарантирует спокойствие.
Для бесплатного бронирования и проверить актуальную стоимость — свяжитесь с нами прямо сейчас! 📞
Параметры новостройки в ЖК ОНЕГИН:
• Номер квартиры - 67
• Вариант отделки - без ремонта
• Площадь - 71.46 м²
• Жилая Жилая - 28.07 м²
• Площадь кухни - 23.95 м²
• Класс жилья - Комфорт
• Комнат - 2-комнатная квартира
• Этаж - 9
• Дом - 10-этажный
Полезная информация о ЖК ОНЕГИН
«ОНЕГИН». Искусство комфортной жизни.
Клубный дом «Онегин» - это современный кирпичный 9-этажный дом в стиле «МОДЕРН», строящийся вблизи ТРК «Парк Хаус» на бульваре 30-летия Победы в Дзержинском районе города Волгограда. Это уединенное место среди городской суеты.
Ценность качества:
Кирпичные стены. Главное достоинство этого материала - прочность и долговечность. Срок эксплуатации кирпичного здания может превышать целый век.
Корзины под сплит-системы. Для идеального климата в квартирах. На фасадной части дома размещены корзины под сплит-системы. Они гармонично вписаны в особый стиль дома.
Остекление. В доме установлены качественные стеклопакеты. Панорамное остекление лоджий обеспечит приток максимального количества естественного света в вашу квартиру.
Дизайнерские общественные зоны, выделенное помещение под консьерж-сервис, бесшумные лифты - всё предусмотрено для вашего комфорта.
Ценность безопасности. Внутренняя территория закрыта и благоустроенна. Въезд будет осуществляться через пропускную систему. Во дворе будут установлены системы видеонаблюдения и контроля. Вы можете быть уверены, что на территории дома не будет случайных людей - только ваши близкие, гости и соседи.
Срок сдачи: 2 кв. 2025 г.
Срок сдачи: 2 кв. 2025 г.
Площади квартир
Этажность
Класс жилья
Корпусов
Стены