Волгоград, Семь Ветров м-н, Строящийся жилой комплекс Дуэт
Площадь
Жилая
Кухня
Отделка
Класс жилья
Комнат
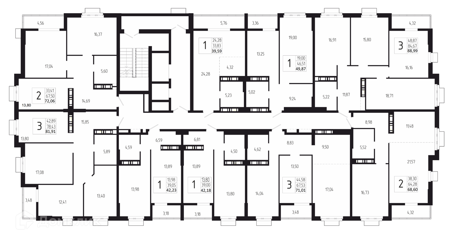
Номер кв.
Этаж
Доступна к покупке 2-комнатная квартира в современном жилом комплексе "ЖК ДУЭТ" 🏢
Квартира расположена на 16-м этаже 18-этажного дома.
Отличный вариант для семьи.
Удобная планировка: 📐
✅ Общая площадь: 72.06 м².
✅ Просторная жилая площадь: 33.41 м².
✅ Кухня: 13.8 м² — идеальна для семейных ужинов.
Особенности квартиры: ✨
🔧 Вариант отделки: без ремонта. Минимум грязных работ.
🌞 Увеличенные оконные проемы наполняют помещения естественным светом.
🌿 Класс жилья: Комфорт — высокое качество строительства.
Финансы и ипотека: 💰
💳 Ипотека от 57 151 руб/мес.
🏦 Доступны льготные программы господдержки.
🤝 Покупка напрямую от застройщика гарантирует спокойствие.
Для бесплатного бронирования и проверить актуальную стоимость — свяжитесь с нами прямо сейчас! 📞
Параметры новостройки в ЖК ДУЭТ:
• Номер квартиры - 135
• Вариант отделки - без ремонта
• Площадь - 72.06 м²
• Жилая Жилая - 33.41 м²
• Площадь кухни - 13.8 м²
• Класс жилья - Комфорт
• Комнат - 2-комнатная квартира
• Этаж - 16
• Дом - 18-этажный
Полезная информация о ЖК ДУЭТ
Дуэт — двойное удовольствие от жизни.
Новый жилой комплекс в Дзержинском районе, на Бульваре 30 -летия Победы, 30. Два 18-этажных дома на благоустроенной территории создают особый ансамбль — «ДУЭТ», в котором хочется жить активной жизнью.
В архитектурном облике «ДУЭТА» воплотились современные градостроительные тенденции. Сочетание благородных природных оттенков в фасадном решении, витражное остекление, корзины под сплит-системы создают стильный и элегантный внешний вид комплекса.
Внутридомовая территория ЖК «ДУЭТ» — это место, в котором вы будете отдыхать, заниматься спортом, встречаться с друзьями и играть с детьми.
Для ценителей здорового образа жизни на территории ЖК предусмотрена спортивная площадка. Также в проекте благоустройства территории запланировано оригинальное озеленение с элементами ландшафтного дизайна, беседки.
Функциональные планировочные решения позволят будущим жителям эргономично организовать окружающее пространство.
Благодаря высоким потолкам 2.7 м и грамотно распланированной площади даже в самой компактной квартире будет много света и воздуха.
Срок сдачи: 2 кв. 2026 г.
Срок сдачи: 2 кв. 2026 г.
Площади квартир
Этажность
Класс жилья
Корпусов
Стены