Волгоград, Герои, строящийся жилой комплекс
Площадь
Жилая
Кухня
Отделка
Класс жилья
Комнат
Номер кв.
Этаж
Предлагается 2-комнатная квартира в современном жилом комплексе "ЖК Герои" 🏢
Квартира расположена на 3-м этаже 4-этажного дома.
Отличный вариант для комфортной жизни.
Удобная планировка: 📐
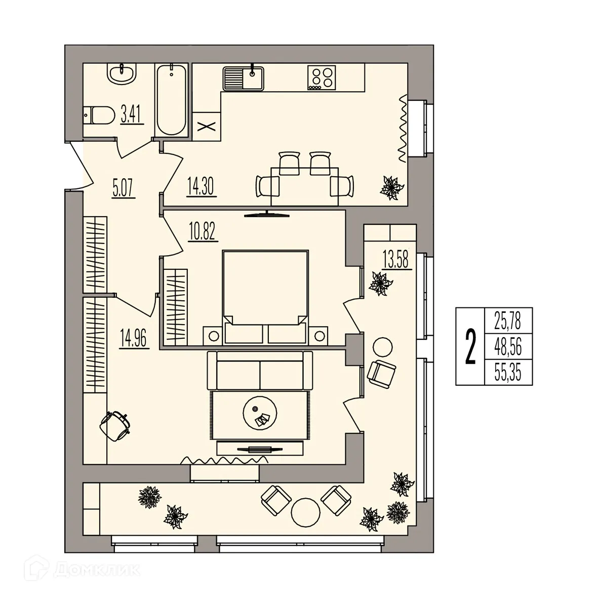
✅ Общая площадь: 55.35 м².
✅ Светлая жилая площадь: 25.78 м².
✅ Кухня: 14.3 м² — эргономичное пространство.
Преимущества квартиры: ✨
🔧 Вариант отделки: грубая отделка. Готовая база для вашего интерьера.
🌞 Большие окна наполняют помещения естественным светом.
🌿 Класс жилья: Комфорт — современные технологии.
Финансы и ипотека: 💰
💳 Ипотека от 55 800 руб/мес.
🏦 Доступны льготные программы господдержки.
🤝 Безопасная сделка гарантирует спокойствие.
Для бесплатного бронирования и зафиксировать цену — позвоните нам прямо сейчас! 📞
Параметры новостройки в ЖК Герои:
• Номер квартиры - 24
• Вариант отделки - грубая отделка
• Площадь - 55.35 м²
• Жилая Жилая - 25.78 м²
• Площадь кухни - 14.3 м²
• Класс жилья - Комфорт
• Комнат - 2-комнатная квартира
• Этаж - 3
• Дом - 4-этажный
Полезная информация о ЖК Герои
Жилой комплекс ""Герои"" — это новый проект, созданный для тех, кто ценит комфорт, безопасность и эстетику. Расположенный в перспективном районе города, он предлагает своим жителям возможность насладиться тишиной и спокойствием, находясь при этом в непосредственной близости от всей необходимой инфраструктуры. ЖК ""Герои"" предлагает квартиры различных размеров и планировок, что позволяет каждому найти для себя идеальное решение. На территории ЖК будут созданы все условия для комфортного проживания, включая детские площадки, зоны отдыха и парковку.
Преимущества ЖК «Герои»:
Малоэтажные жилые дома;
Высота потолка – 3 м;
Лифт, колясочные;
Благоустроенная современная территория с зонами отдыха для взрослых и детей;
Дорога до центра на автомобиле занимает 10 минут.
Рядом расположены:
Мемориальный комплекс «Мамаев Курган»;
ТРК «Мармелад»;
ТРК «Парк Хаус»;
ДЦ Volkswagen Волга-Раст;
Лицей № 8 Олимпия, лицей № 9, гимназия № 11;
Детский сад №31.
Больничный комплекс;
Микрохирургия глаза им. С.Н. Фёдорова."
Срок сдачи: 1 кв. 2025 г.
Срок сдачи: 1 кв. 2025 г.
Площади квартир
Этажность
Класс жилья
Корпусов
Стены