Волгоград, Семь Ветров м-н, 127-й микрорайон
Площадь
Жилая
Кухня
Отделка
Класс жилья
Комнат
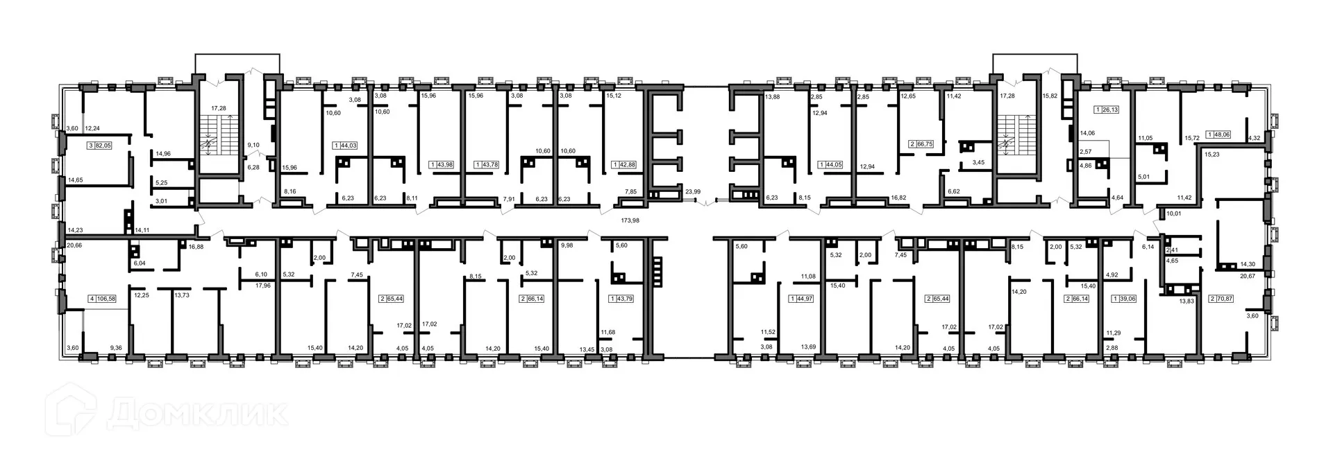
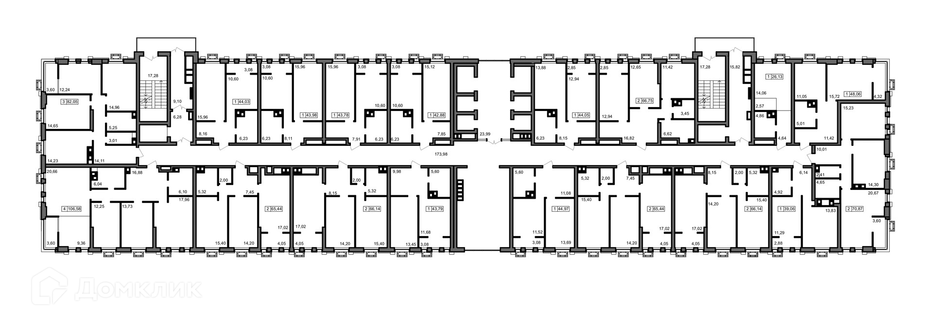
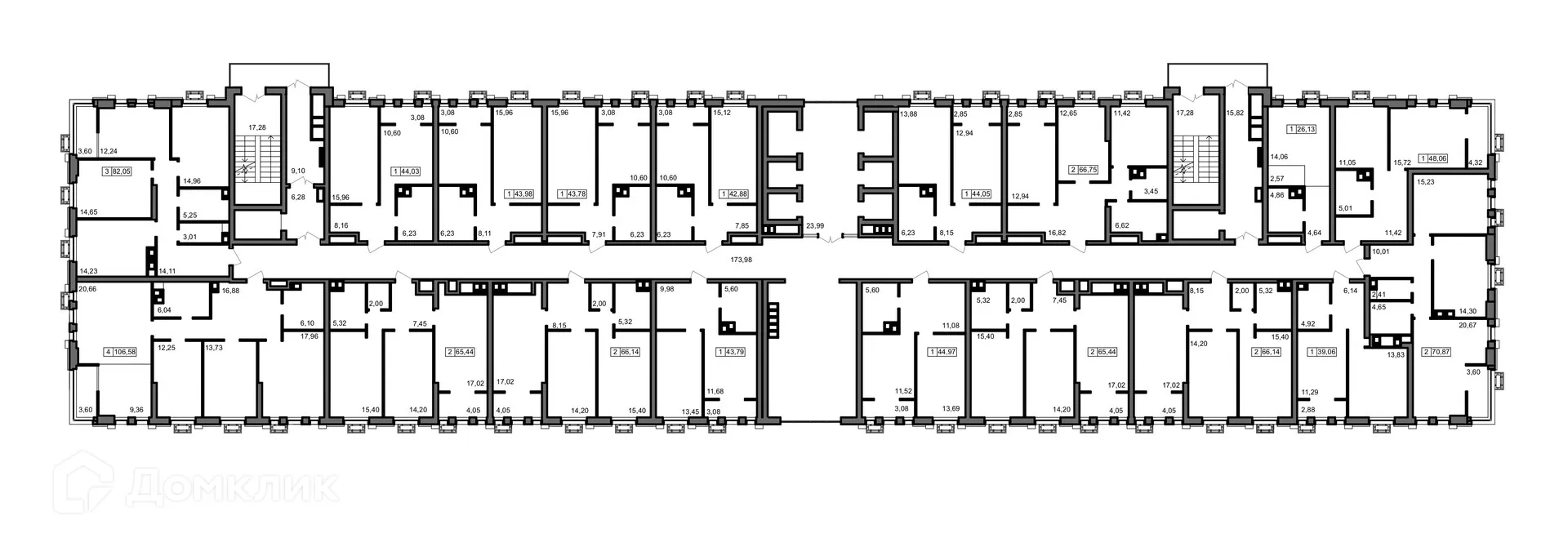
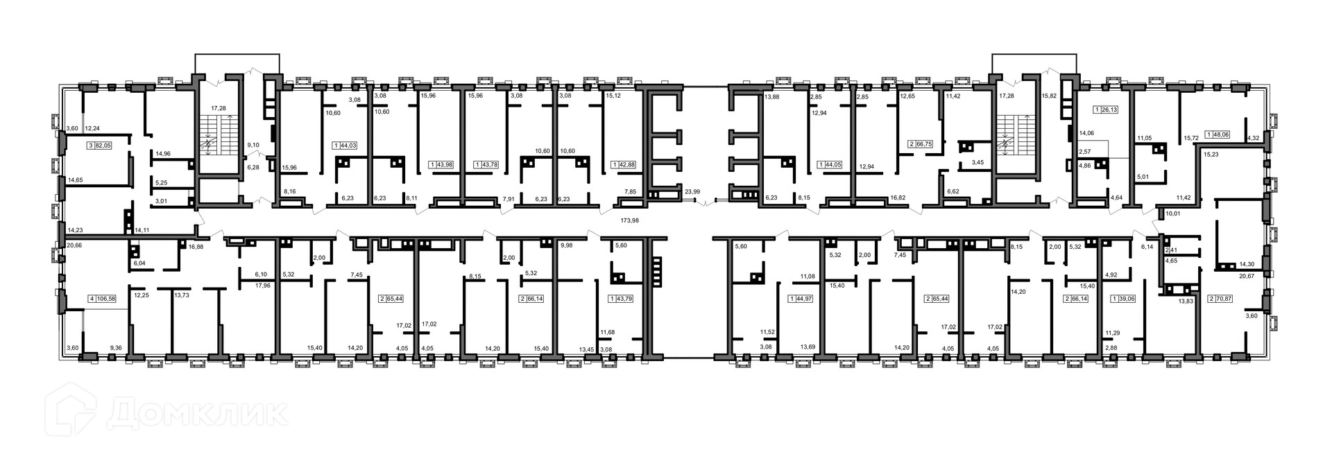
Номер кв.
Этаж
Доступна к покупке 2-комнатная квартира в современном жилом комплексе "ЖК ОМЕГА" 🏢
Квартира расположена на -м этаже 24-этажного дома.
Отличный вариант для семьи.
Продуманная планировка: 📐
✅ Общая площадь: 66.75 м².
✅ Просторная жилая площадь: 25.59 м².
✅ Кухня: 11.42 м² — место для кулинарных шедевров.
Особенности квартиры: ✨
🔧 Вариант отделки: без отделки. Готовая база для вашего интерьера.
🌞 Большие окна наполняют помещения естественным светом.
🌿 Класс жилья: Комфорт — благоустроенная территория.
Выгодные условия покупки: 💰
💳 Ипотека от 53 919 руб/мес.
🏦 Доступны льготные программы господдержки.
🤝 Безопасная сделка гарантирует спокойствие.
Для бесплатного бронирования и зафиксировать цену — позвоните нам прямо сейчас! 📞
Параметры новостройки в ЖК ОМЕГА:
• Номер квартиры -
• Вариант отделки - без отделки
• Площадь - 66.75 м²
• Жилая Жилая - 25.59 м²
• Площадь кухни - 11.42 м²
• Класс жилья - Комфорт
• Комнат - 2-комнатная квартира
• Этаж -
• Дом - 24-этажный
Полезная информация о ЖК ОМЕГА
МЕГА СТАРТОВЫЕ ЦЕНЫ на квартиры в жк О!МЕГА. Рассрочка. TRADE IN.
О!МЕГА – это современный и инновационный жилой комплекс, разработанный специально для активных людей, которые всегда стремятся к лучшему, особенно в области технологических достижений.
О!МЕГА - это яркие архитектурные решения, высокий уровень технологической оснащенности и уникальные зоны общего пользования, созданные для того, чтобы воплотить идею современного комьюнити-комплекса.
А еще это монолитно — кирпичный 23-х этажный дом, с собственной котельной, своей электрической подстанцией, огромной входной группой и входами с разных сторон дома.
Консьерж служба
Колясочная и велосипедная
Зарядки для электромобилей
Наземный паркинг
Большая детская площадка
Спортивная площадка с уличными тренажерами и множество других преимуществ.
О!МЕГА - первый* комьюнити комплекс в Волгограде.
*Первый - в портфеле проектов компании Ваш выбор на октябрь 2023г.
Срок сдачи: 3 кв. 2026 г.
Срок сдачи: 3 кв. 2026 г.
Площади квартир
Этажность
Класс жилья
Корпусов
Стены