Волгоград, Семь Ветров м-н, 127-й микрорайон
Площадь
Жилая
Кухня
Отделка
Класс жилья
Комнат
Номер кв.
Этаж
Продается 2-комнатная квартира в новом жилом комплексе "ЖК ОМЕГА" 🏢
Квартира расположена на 14-м этаже 24-этажного дома.
Отличный вариант для семьи.
Продуманная планировка: 📐
✅ Общая площадь: 65.95 м².
✅ Светлая жилая площадь: 29.6 м².
✅ Кухня: 17.02 м² — идеальна для семейных ужинов.
Особенности квартиры: ✨
🔧 Вариант отделки: грубая отделка. Минимум грязных работ.
🌞 Увеличенные оконные проемы наполняют помещения природным светом.
🌿 Класс жилья: Комфорт — благоустроенная территория.
Финансы и ипотека: 💰
💳 Ипотека от 53 269 руб/мес.
🏦 Подходит под семейную и IT ипотеку.
🤝 Эскроу-счета гарантирует надежность.
Чтобы узнать подробности и зафиксировать цену — позвоните нам прямо сейчас! 📞
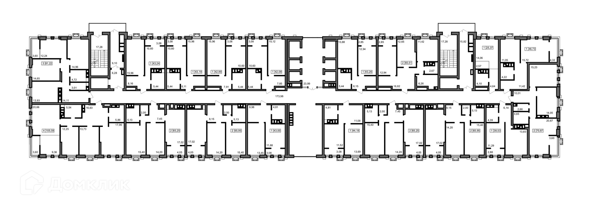
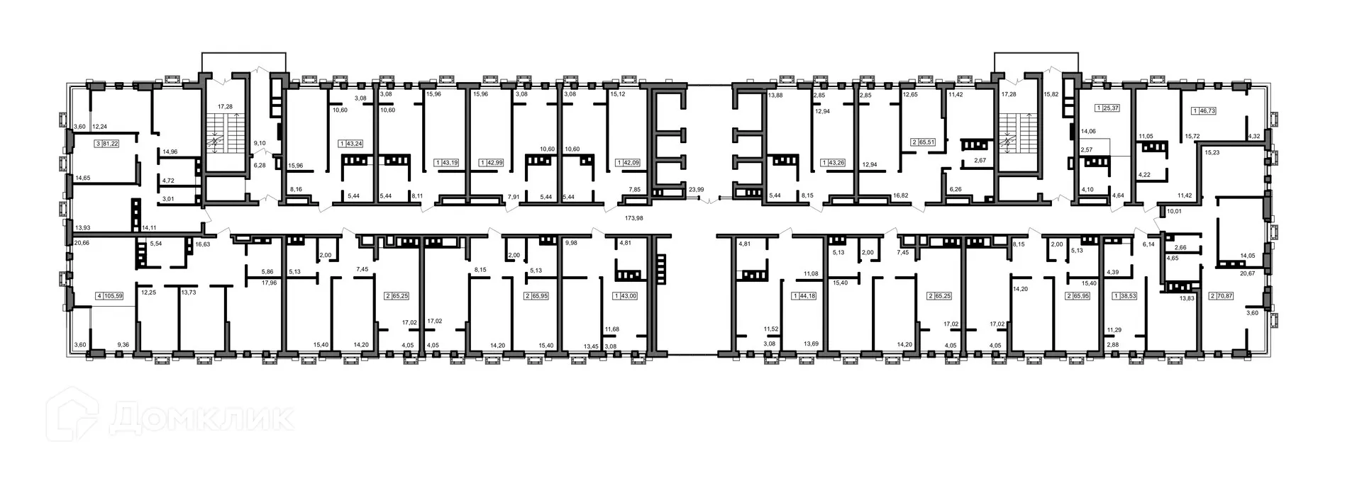
Параметры новостройки в ЖК ОМЕГА:
• Номер квартиры - 223
• Вариант отделки - грубая отделка
• Площадь - 65.95 м²
• Жилая Жилая - 29.6 м²
• Площадь кухни - 17.02 м²
• Класс жилья - Комфорт
• Комнат - 2-комнатная квартира
• Этаж - 14
• Дом - 24-этажный
Полезная информация о ЖК ОМЕГА
МЕГА СТАРТОВЫЕ ЦЕНЫ на квартиры в жк О!МЕГА. Рассрочка. TRADE IN.
О!МЕГА – это современный и инновационный жилой комплекс, разработанный специально для активных людей, которые всегда стремятся к лучшему, особенно в области технологических достижений.
О!МЕГА - это яркие архитектурные решения, высокий уровень технологической оснащенности и уникальные зоны общего пользования, созданные для того, чтобы воплотить идею современного комьюнити-комплекса.
А еще это монолитно — кирпичный 23-х этажный дом, с собственной котельной, своей электрической подстанцией, огромной входной группой и входами с разных сторон дома.
Консьерж служба
Колясочная и велосипедная
Зарядки для электромобилей
Наземный паркинг
Большая детская площадка
Спортивная площадка с уличными тренажерами и множество других преимуществ.
О!МЕГА - первый* комьюнити комплекс в Волгограде.
*Первый - в портфеле проектов компании Ваш выбор на октябрь 2023г.
Срок сдачи: 3 кв. 2026 г.
Срок сдачи: 3 кв. 2026 г.
Площади квартир
Этажность
Класс жилья
Корпусов
Стены