Волгоград, Семь Ветров м-н, 127-й микрорайон
Площадь
Жилая
Кухня
Отделка
Класс жилья
Комнат
Номер кв.
Этаж
Продается 1-комнатная квартира в современном жилом комплексе "ЖК ОМЕГА" 🏢
Квартира расположена на 23-м этаже 24-этажного дома.
Отличный вариант для инвестиций.
Удобная планировка: 📐
✅ Общая площадь: 44.18 м².
✅ Уютная жилая площадь: 13.69 м².
✅ Кухня: 11.52 м² — идеальна для семейных ужинов.
Преимущества квартиры: ✨
🔧 Вариант отделки: грубая отделка. Готовая база для вашего интерьера.
🌞 Увеличенные оконные проемы наполняют помещения природным светом.
🌿 Класс жилья: Комфорт — благоустроенная территория.
Финансы и ипотека: 💰
💳 Ипотека от 36 666 руб/мес.
🏦 Подходит под семейную и IT ипотеку.
🤝 Эскроу-счета гарантирует надежность.
Чтобы забронировать эту квартиру бесплатно и зафиксировать цену — свяжитесь с нами прямо сейчас! 📞
Параметры новостройки в ЖК ОМЕГА:
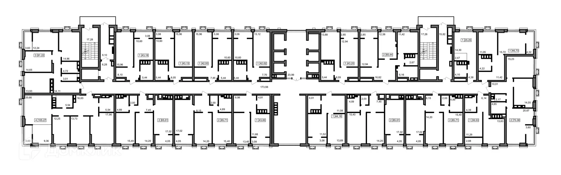
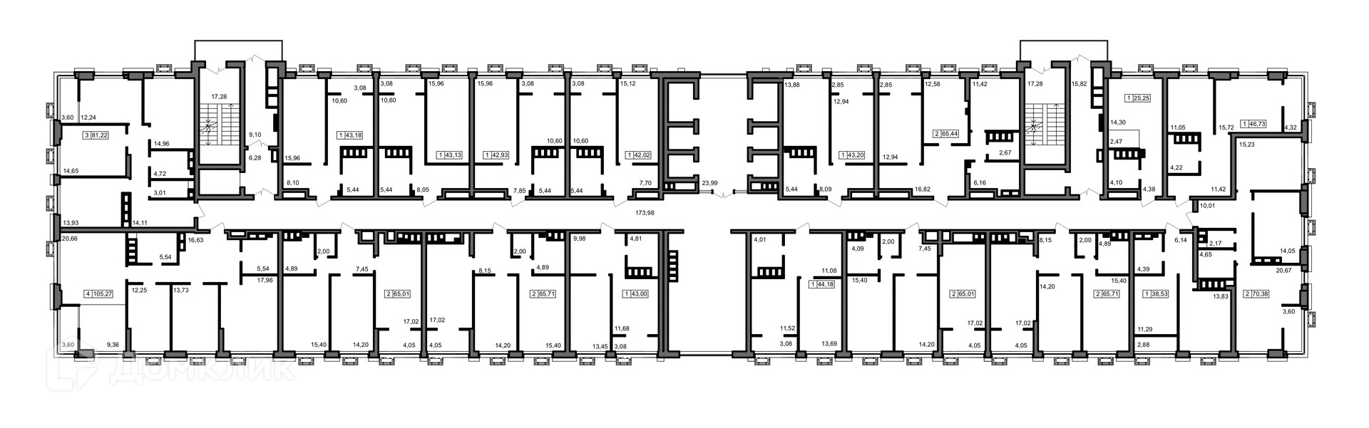
• Номер квартиры - 387
• Вариант отделки - грубая отделка
• Площадь - 44.18 м²
• Жилая Жилая - 13.69 м²
• Площадь кухни - 11.52 м²
• Класс жилья - Комфорт
• Комнат - 1-комнатная квартира
• Этаж - 23
• Дом - 24-этажный
Полезная информация о ЖК ОМЕГА
МЕГА СТАРТОВЫЕ ЦЕНЫ на квартиры в жк О!МЕГА. Рассрочка. TRADE IN.
О!МЕГА – это современный и инновационный жилой комплекс, разработанный специально для активных людей, которые всегда стремятся к лучшему, особенно в области технологических достижений.
О!МЕГА - это яркие архитектурные решения, высокий уровень технологической оснащенности и уникальные зоны общего пользования, созданные для того, чтобы воплотить идею современного комьюнити-комплекса.
А еще это монолитно — кирпичный 23-х этажный дом, с собственной котельной, своей электрической подстанцией, огромной входной группой и входами с разных сторон дома.
Консьерж служба
Колясочная и велосипедная
Зарядки для электромобилей
Наземный паркинг
Большая детская площадка
Спортивная площадка с уличными тренажерами и множество других преимуществ.
О!МЕГА - первый* комьюнити комплекс в Волгограде.
*Первый - в портфеле проектов компании Ваш выбор на октябрь 2023г.
Срок сдачи: 3 кв. 2026 г.
Срок сдачи: 3 кв. 2026 г.
Площади квартир
Этажность
Класс жилья
Корпусов
Стены