Волгоград, Семь Ветров м-н, 127-й микрорайон
Площадь
Жилая
Кухня
Отделка
Класс жилья
Комнат
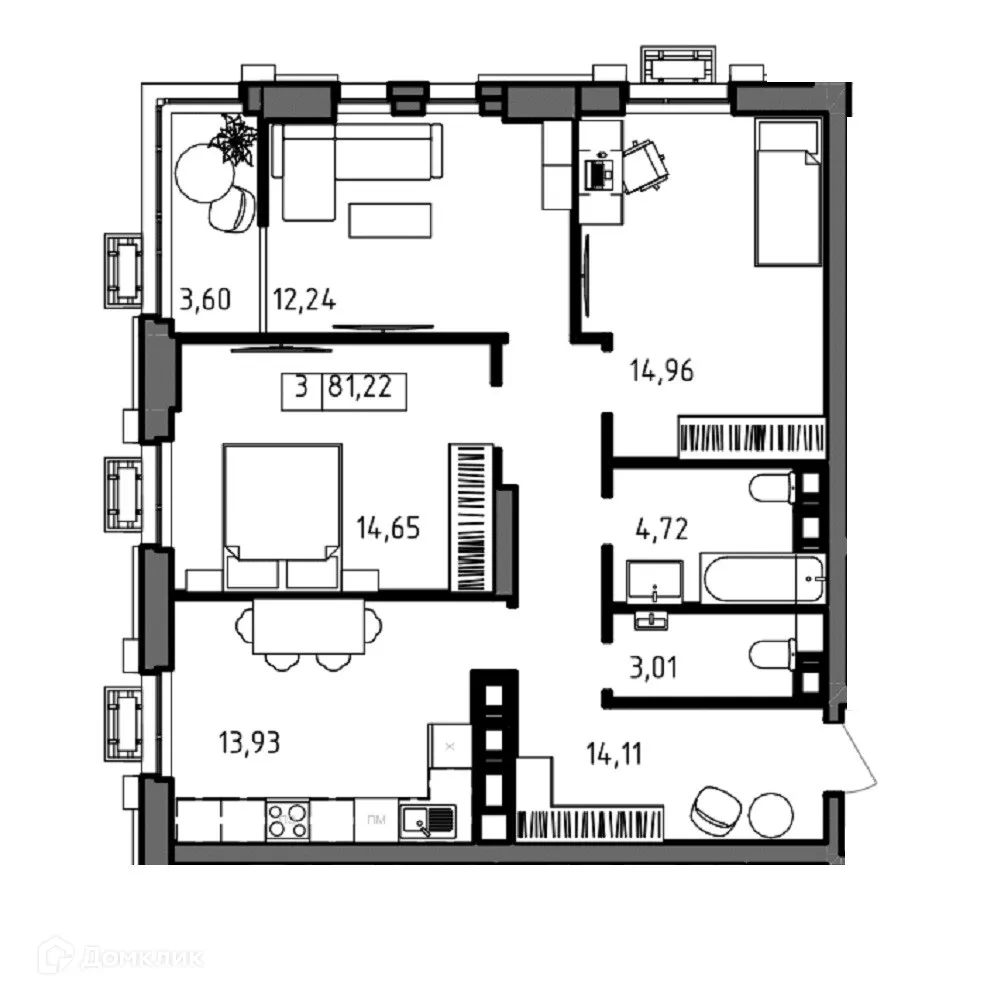
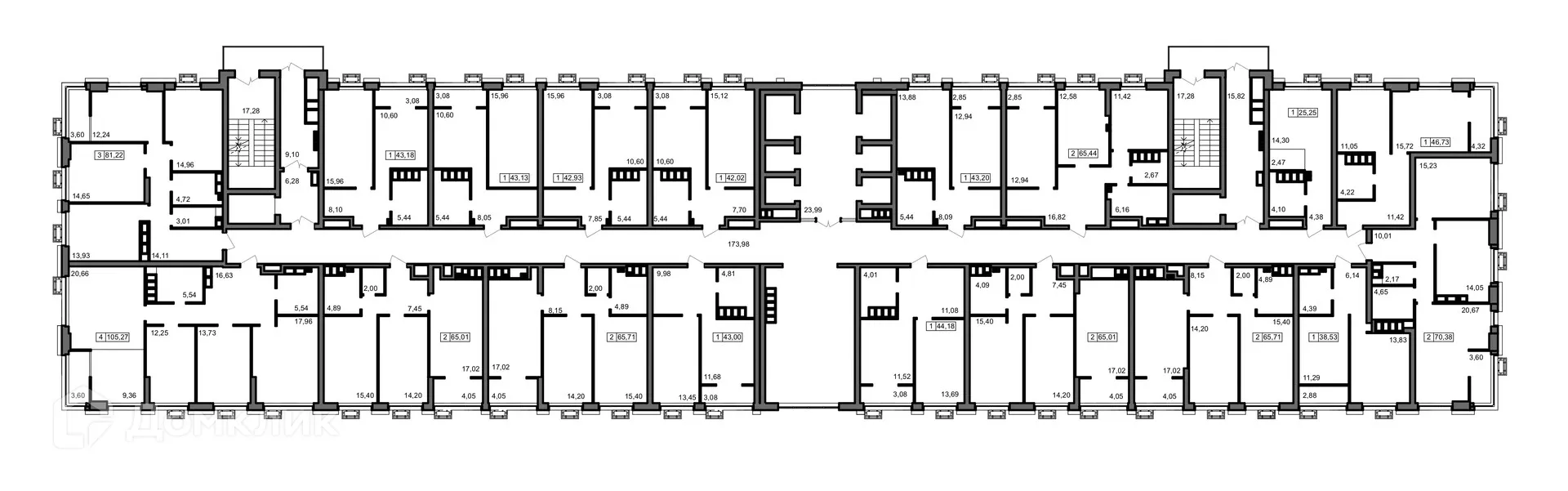
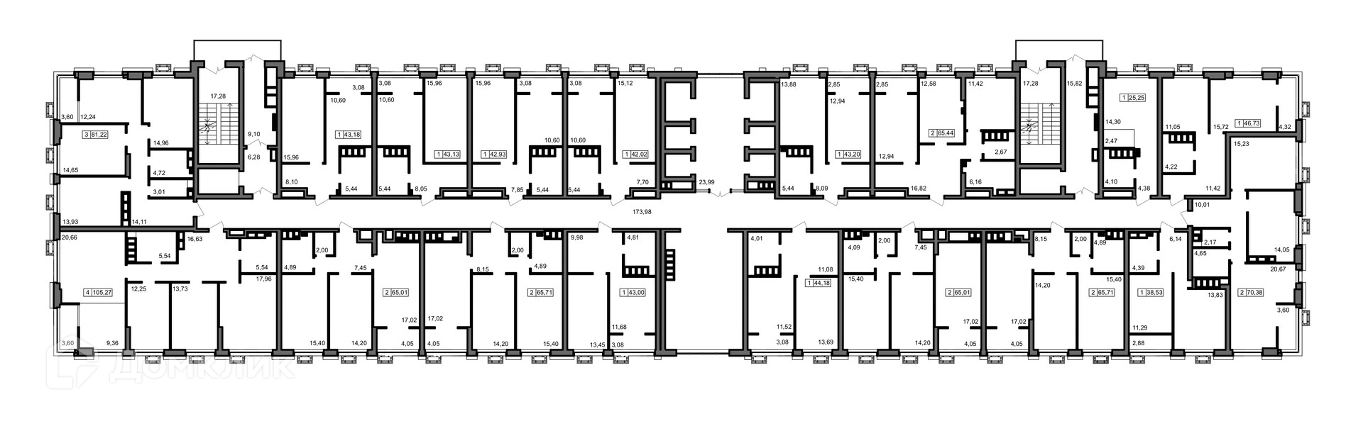
Номер кв.
Этаж
Доступна к покупке 3-комнатная квартира в новом жилом комплексе "ЖК ОМЕГА" 🏢. Квартира расположена на 15-м этаже 24-этажного дома. Отличный вариант для комфортной жизни.
Чтобы узнать подробности и зафиксировать цену — свяжитесь с нами прямо сейчас! 📞
МЕГА СТАРТОВЫЕ ЦЕНЫ на квартиры в жк О!МЕГА. Рассрочка. TRADE IN. О!МЕГА – это современный и инновационный жилой комплекс, разработанный специально для активных людей, которые всегда стремятся к лучшему, особенно в области технологических достижений. О!МЕГА - это яркие архитектурные решения, высокий уровень технологической оснащенности и уникальные зоны общего пользования, созданные для того, чтобы воплотить идею современного комьюнити-комплекса. А еще это монолитно — кирпичный 23-х этажный дом, с собственной котельной, своей электрической подстанцией, огромной входной группой и входами с разных сторон дома. Консьерж служба Колясочная и велосипедная Зарядки для электромобилей Наземный паркинг Большая детская площадка Спортивная площадка с уличными тренажерами и множество других преимуществ. О!МЕГА - первый* комьюнити комплекс в Волгограде. *Первый - в портфеле проектов компании Ваш выбор на октябрь 2023г.
Срок сдачи: 3 кв. 2026 г.
Срок сдачи: 3 кв. 2026 г.
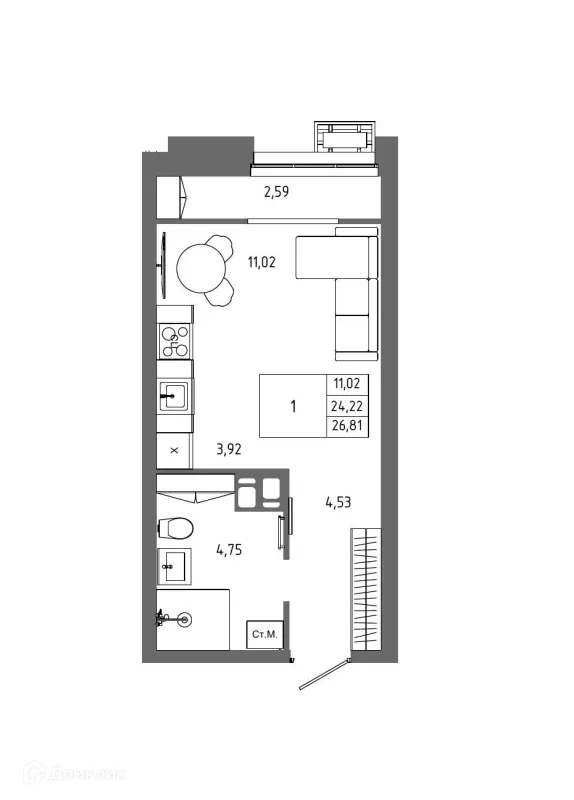
Площади квартир
Этажность
Класс жилья
Корпусов
Стены